近日,贵州省建筑业协会公布了“2024年度贵州省工程建设工法名单”,贵州交建集团共70项工法成功入选,其中公路集团获25项,路桥集团获25项,桥梁集团获20项。
这些工法涵盖隧道、桥梁、孔桩等施工,代表了行业的最新技术发展方向,在技术创新、节能创效等方面具有积极意义,体现了贵州交建集团在技术创新方面的实力。
交建集团始终坚持“创新是第一动力,科技是第一生产力”理念,高度重视科技创新工作,统筹司属各单位不断增强知识产权保护意识,持续加大国家专利和省部级工法的申报工作力度,近三年成果获得最为集中。工法的研究,对于提升行业技术水平、提高工程质量与安全、增强企业竞争力、促进资源节约与环境保护以及推动行业标准化与规范化等方面都具有重要意义。接下来,交建集团将继续做好新技术应用总结,大力推广和应用这些工法,加强核心技术积累,加大科技成果的应用与推广,争取获得更多先进的工程建设工法,不断提高科技创新创效能力。
一起来看看都有哪些工法吧

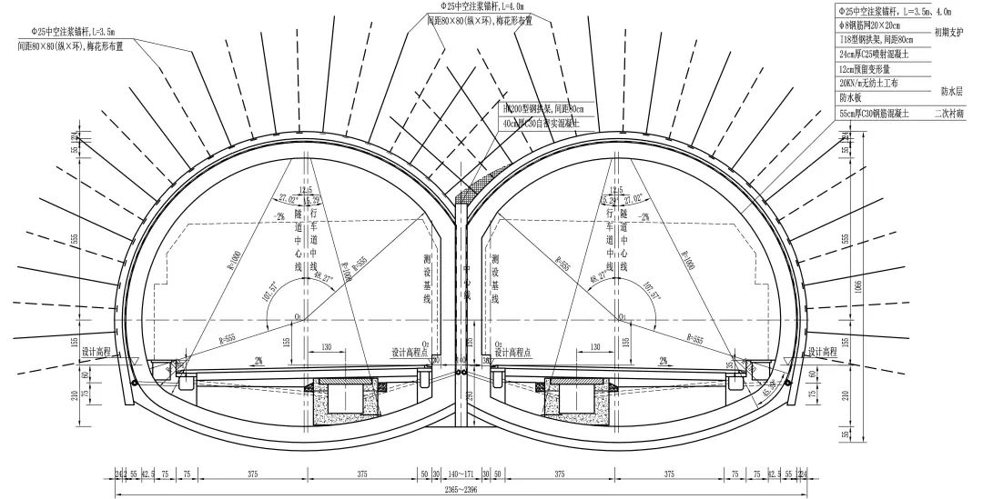
公路集团:无中导洞三层薄壁式直中墙连拱隧道施工工法
公路集团开展高速公路无中导直中墙连拱隧道设计与施工技术研究,通过课题提出了无中导洞三层薄壁式直中墙连拱隧道新型结构型式及施工工法。该工法在六安高速云庄隧道、瓮开高速四坪隧道得到了实际应用,解决了桥隧相连工程中整体式直中墙连拱隧道施工工序复杂、工期较长,受力转换多,中隔墙顶部帽檐施工缝渗漏水等技术难题,同时大幅度减少隧道工程洞口建设征地,提高土地资源利用率,实现绿色低碳、降本增效的建设目标。本工法关键技术经贵州省公路学会组织科技成果鉴定,总体达到国内领先水平。截至目前,本工法相关技术成果已申报发明专利2项。

无中导洞三层薄壁式直中墙连拱隧道施工工法原理图
桥梁集团:山区大跨径悬索桥超前架设猫道后安装索鞍施工工法
本工法适用于大跨度地锚式悬索桥、先缆后梁施工工艺且采用门架系统进行索鞍安装施工。悬索桥索鞍生产周期长,如过程中出现索鞍生产滞后或供货不及时,将导致的后续猫道、主缆等施工工序无法正常开展,将严重影响项目整体工期。本工法通过调整悬索桥施工工序,采用先进行猫道施工后进行索鞍安装的工序。对猫道结构进行优化,取消猫道下拉装置,调整主塔中跨侧猫道变位装置与主塔的间距,预留了索鞍吊装施工上下的“通道”,确保格栅及索鞍所需的吊装通行空间。目前,正在建设的六安高速花江峡谷大桥通过该工法调整猫道结构设计和猫道超前索鞍施工,有效避免了大桥整体工期延误,保证大桥如期完成。

建设中的花江峡谷大桥
路桥集团:大跨度悬索桥钢梁边节段长距离荡移施工工法
白帝城长江大桥全长1170米,主跨916米,为钢箱梁悬索桥,受长江三峡水库周期性蓄水、隧道锚浅埋下穿城市密集建筑群等环境条件影响,施工难度极大。为顺利完成施工任务,项目技术团队开展深水基础、浅埋隧道锚无爆破开挖、钢箱梁荡移吊装等关键施工技术攻关,通过技术迭代、创新,提炼总结形成了大跨度悬索桥钢梁边节段长距离荡移施工工法、长江三峡库区潮汐深水区钢平台施工工法、基于隧道锚出渣系统的散索鞍安装施工工法、大跨度悬索桥钢箱梁吊装智能控制施工工法等5项,为白帝城长江大桥的快速建成提供了技术保障。尤其是大跨度悬索桥钢梁边节段长距离荡移施工工法成功解决了大桥南岸25-28号节段钢箱梁无法靠岸垂直吊装的技术难题。

建设中的白帝城长江大桥